โครงการข้างเคียง
-
-
สำเร็จวิลล์3
ระยะทาง 0.15
-
-
-
-
ศุภาลัย การ์เด้นวิลล์ วงแหวนปิ่นเกล้า - พระราม 5
ระยะทาง 0.23
-
สำเร็จวิลล์ 4
ระยะทาง 0.25
-
รุ่งอรุณเพลส
ระยะทาง 0.36
-
-
ศุภาลัย วิลล์ วงแหวน ปิ่นเกล้า-พระราม 5
ระยะทาง 0.56
อสังหาริมทรัพย์
บ้าน
อินนิซิโอ ปิ่นเกล้า-วงแหวน
สิทธิพิเศษ
ดูทั้งหมด
Loading..
-
ใกล้ BTS
Keywords 1, Keywords 2, Keywords 3
รายละเอียดโครงการ
ราคาเริ่มต้น
2,790,000 บาท
ณ วันที่
01 มี.ค. 2554
ปีที่สร้างเสร็จ
-
ชื่อโครงการ
อินนิซิโอ ปิ่นเกล้า-วงแหวน
ประเภท
บ้าน
ผู้พัฒนา
บมจ.แลนด์ แอนด์ เฮ้าส์
ขนาดที่ดิน
70 ไร่
4 งาน
77 ตร.ว.
สิ่งอำนวยความสะดวก
-
พนักงานรักษาความปลอดภัย
-
สวนหย่อม/ สวนสาธารณะ
-
สโมสร/ คลับเฮ้าส์
-
สระว่ายน้ำ
-
สนามเด็กเล่น
จุดเด่น
ก่อสร้างบ้านก่อนขาย ลูกค้าได้รับโอนกรรมสิทธิ์ทันที โดยไม่ต้องผ่อนดาวน์ สภาพแวดล้อมภายในโครงการสวยงามเน้นธรรมชาติของต้นไม้ เป็นโครงการที่มีการบริหารที่ดี เจ้าหน้าที่รักษาความปลอดภัยสุภาพ เคร่งครัด
รายละเอียดเบื้องต้น
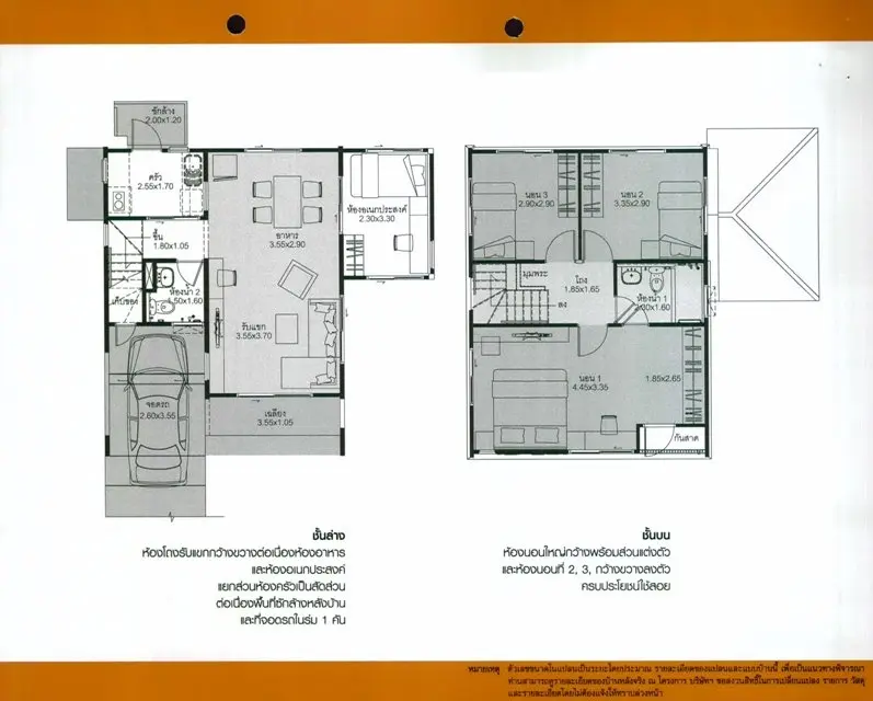
อินนิซิโอ ปิ่นเกล้า-วงแหวน แบบบ้านเดี่ยว 2 ชั้น
รายละเอียดสถานที่
โครงการตั้งอยู่ติดถนนอัจฉริยะพัฒนา
สถานที่สำคัญโดยรอบ อินนิซิโอ ปิ่นเกล้า-วงแหวน
ราคาเฉลี่ยโครงการในทำเลใกล้เคียง
โครงการใกล้เคียงเปรียบเทียบอินนิซิโอ ปิ่นเกล้า-วงแหวน
ชื่อโครงการ
ประเภทอสังหา
ผู้พัฒนา
ราคาเริ่มต้น
ขนาดที่ดิน
ปีที่สร้างเสร็จ
ตำบล/แขวง
อำเภอ/เขต
จังหวัด
สิ่งอำนวยความสะดวก
ความคิดเห็น