โครงการข้างเคียง

สถานที่สำคัญโดยรอบ ชีวา บิซ โฮม เอกชัย-บางบอน

คำนวณสินเชื่อการผ่อนฯ รายเดือน

คำนวณภาษีการขายอสังหาริมทรัพย์


ความคิดเห็น

ราคาเฉลี่ยโครงการในทำเลใกล้เคียง

โครงการใกล้เคียงเปรียบเทียบชีวา บิซ โฮม เอกชัย-บางบอน

 
ชื่อโครงการ
ประเภทอสังหา
ผู้พัฒนา
ราคาเริ่มต้น
ขนาดที่ดิน
ปีที่สร้างเสร็จ
ตำบล/แขวง
อำเภอ/เขต
จังหวัด
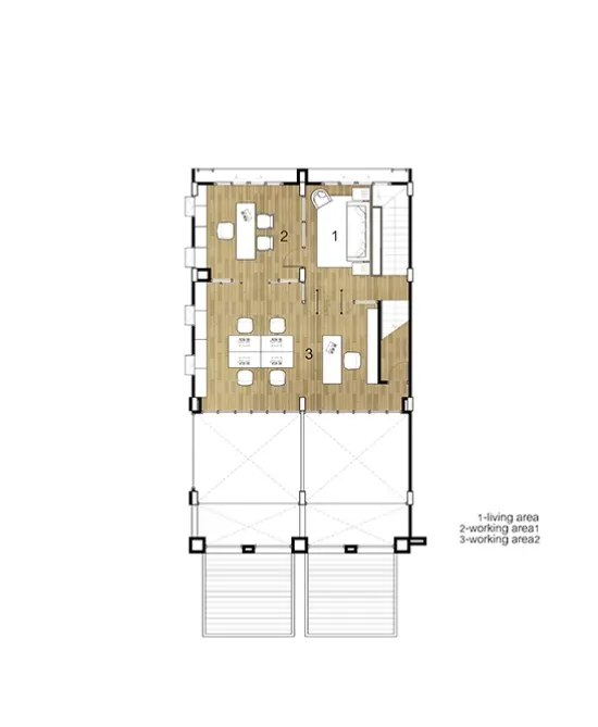
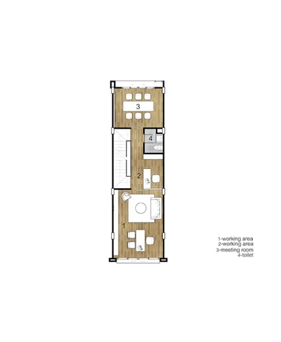
สิ่งอำนวยความสะดวก