โครงการข้างเคียง
-
-
บ้านบารเมษฐ์สวนหลวง
ระยะทาง 0.02
-
-
-
บ้านนันทวัน สวนหลวง ร.9
ระยะทาง 0.23
-
ร่มเย็นสวนหลวง
ระยะทาง 0.55
-
ฐานทอง
ระยะทาง 0.58
-
-
บ้านลลิล เดอะยัง เอ็กเซ็คคูทีพ
ระยะทาง 0.68
-
ชวนชื่น วงแหวน-อุดมสุข
ระยะทาง 0.74
อสังหาริมทรัพย์
บ้าน
ศุภาลัย วิลล์ อ่อนนุช-สวนหลวง
สิทธิพิเศษ
ดูทั้งหมด
Loading..
-
ใกล้ BTS
Keywords 1, Keywords 2, Keywords 3
รายละเอียดโครงการ
ราคาเริ่มต้น
3,650,000 บาท
ณ วันที่
01 มี.ค. 2556
ปีที่สร้างเสร็จ
-
ชื่อโครงการ
ศุภาลัย วิลล์ อ่อนนุช-สวนหลวง
ประเภท
บ้าน
ผู้พัฒนา
บมจ.ศุภาลัย
ขนาดที่ดิน
สิ่งอำนวยความสะดวก
-
สวนหย่อม/ สวนสาธารณะ
จุดเด่น
ใกล้รถไฟฟ้าและสนาบบินสุวรรณภูมิและสามารถเดินทางได้หลายเส้นทางจึงง่ายต่อการเดินทางในชั่วโมงเร่งด่วน
รายละเอียดเบื้องต้น
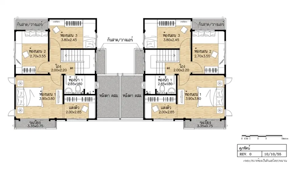
โครงการเน้นบ้านในแบบของ ศุภาลัย รูปทรงทาวน์เฮ้าส์สไตล์โมเดิร์น มีห้องนอนขนาดใหญ่และมีการจัดวางพื้นที่การใช้งานได้อย่างลงตัว
รายละเอียดสถานที่
ทำเลที่ตั้ง อยู่บนถนนเฉลิมพระเกียรติ ร.9 สามารถเดินทางได้หลายเส้นทางเช่น ถนนอ่อนนุช ถนนศรีนครินทร์ ถนนคู่ขนาน วงแหวนรอบนอกใกล้ถนนมอเตอร์เวย์ ใกล้รถไฟฟ้าแอร์พอร์ตลิงท์ สถานีบ้านทับช้างและรถไฟฟ้าสายสีเหลือง ส่วนต่อขยาย (ลาดพร้าว-สำโรง)
สถานที่สำคัญโดยรอบ ศุภาลัย วิลล์ อ่อนนุช-สวนหลวง
ราคาเฉลี่ยโครงการในทำเลใกล้เคียง
โครงการใกล้เคียงเปรียบเทียบศุภาลัย วิลล์ อ่อนนุช-สวนหลวง
ชื่อโครงการ
ประเภทอสังหา
ผู้พัฒนา
ราคาเริ่มต้น
ขนาดที่ดิน
ปีที่สร้างเสร็จ
ตำบล/แขวง
อำเภอ/เขต
จังหวัด
สิ่งอำนวยความสะดวก
ความคิดเห็น