โครงการข้างเคียง
-
-
-
ลุมพินี เซ็นเตอร์ สุขุมวิท 77
ระยะทาง 0.16
-
-
-
-
เดอะเบดรูม บูติก,โรงแรม
ระยะทาง 0.29
-
-
-
อสังหาริมทรัพย์
คอนโด/อาคารชุด
อาร์ทิมิส สุขุมวิท 77
สิทธิพิเศษ
ดูทั้งหมด
Loading..
-
ใกล้ BTS
Keywords 1, Keywords 2, Keywords 3
รายละเอียดโครงการ
ราคาเริ่มต้น
2,490,000 บาท
ณ วันที่
01 ม.ค. 2558
ปีที่สร้างเสร็จ
01 ม.ค. 2561
ชื่อโครงการ
อาร์ทิมิส สุขุมวิท 77
ประเภท
คอนโดมิเนียม
ผู้พัฒนา
บจก.ซีทีซีซี เอ็นจิเนียริ่ง
ขนาดที่ดิน
3 ไร่
3 งาน
53 ตร.ว.
สิ่งอำนวยความสะดวก
-
กล้องวงจรปิด
-
พนักงานรักษาความปลอดภัย
-
ร้านสะดวกซื้อ/ร้านค้า
-
สระว่ายน้ำ
-
ส่วนต้อนรับ (ล็อบบี้)
-
สวนหย่อม/ สวนสาธารณะ
จุดเด่น
ทำเลที่ตั้งโครงการมีศักยภาพและเป็นอาคารสูง 30 ชั้นใกล้รถไฟฟ้า BTS อ่อนนุชเดินทางสะดวก เหมาะกับการใช้ชีวิต
รายละเอียดเบื้องต้น
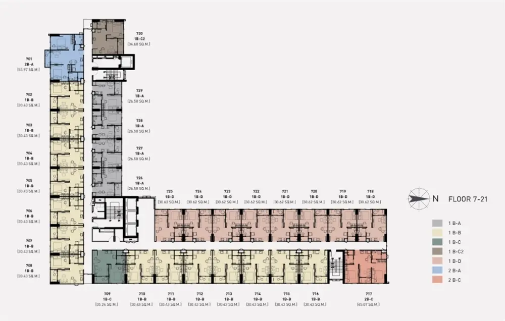
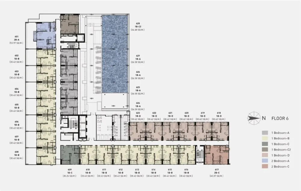
เป็นอาคารสูง 30 ชั้น พักอาศัยตั้งแต่ ชั้น 7-30 มี หลายแบบให้ลูกค้าเลือกได้เช่น ขนาด 1 ห้องนอนพื้นที่ใช้สอย 26.58-35.24 ตารางเมตร ขนาด 2 ห้องนอนพื้นที่ใช้สอย45.07-53.97ตารางเมตรและขนาด 3 นอนพื้นที่ใช้สอย 73.81 ตารางเมตร พร้อมกับการออกแบบห้องให้มีพื้นที่ใช้
รายละเอียดสถานที่
โครงการตั้งอยู่ในซอยสุขุมวิท 77ซึ่งสามารถเชื่อมต่อถนนสุขุมวิท 77 (อ่อนนุช)ได้อย่างสะดวก
สถานที่สำคัญโดยรอบ อาร์ทิมิส สุขุมวิท 77
ราคาเฉลี่ยโครงการในทำเลใกล้เคียง
โครงการใกล้เคียงเปรียบเทียบอาร์ทิมิส สุขุมวิท 77
ชื่อโครงการ
ประเภทอสังหา
ผู้พัฒนา
ราคาเริ่มต้น
ขนาดที่ดิน
ปีที่สร้างเสร็จ
ตำบล/แขวง
อำเภอ/เขต
จังหวัด
สิ่งอำนวยความสะดวก
ความคิดเห็น