Project Nearby
Real Estate
Condominium
Wyne Sukhumvit
Privilege
See All
Loading..
-
ใกล้ BTS
Keywords 1, Keywords 2, Keywords 3
Project Description
Starting price
2,621,000 Baht
($81,906)
Update
01 Aug 2010
Completion Year
-
Project Name
Wyne Sukhumvit
Project type
Condominium
Developed by
บมจ.แสนสิริ
Land area
2 Rai
3 Ngan
75 Sq.Wah
Facilities
-
กล้องวงจรปิด
-
บริการสัญญาณ wifi พื้นที่ส่วนกลาง
-
พนักงานรักษาความปลอดภัย
-
ฟิตเนส /ห้องออกกำลังกาย
-
สระว่ายน้ำ
-
ส่วนต้อนรับ (ล็อบบี้)
-
สวนหย่อม/ สวนสาธารณะ
Selling Point
ตั้งอยู่ในย่านตัวเมือง ตั้งอยู่ในแนวรถไฟฟ้าบีทีเอส สายสุขุมวิท
Project Details
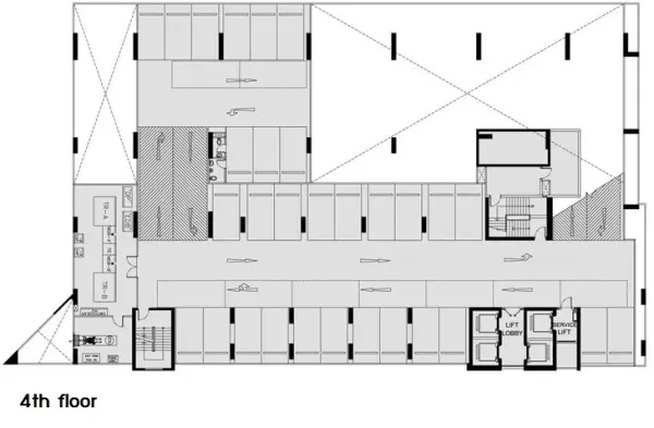
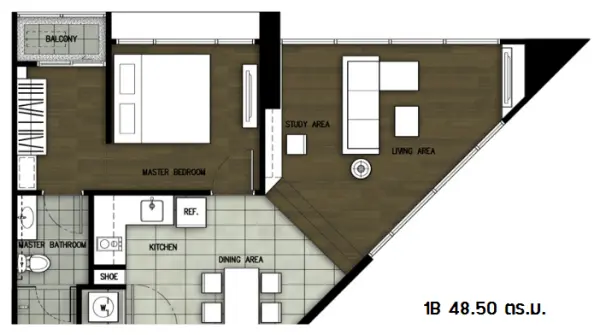
วายน์ สุขุมวิท แบบอาคารชุด 31 ชั้น
Location
ทำเลที่ตั้งติดถนนสุขุมวิท บริเวณสามแยกพระโขนงพอดี ซึ่งเป็นบริเวณที่ค่อนข้างพลุกพล่าน การจราจรติดขัดในชั่วโมงเร่งด่วน แต่บริเวณโดยรอบใกล้ สิ่งอำนวยความสะดวก เช่น ห้างคาร์ฟูร์ อ่อนนุช, ห้างเทสโก้ โลตัส สุขุมวิท 50, ตลาดพระโขนง เป็นต้น
Nearest landmark Wyne Sukhumvit
Calculate Property transfer tax
ราคาเฉลี่ยโครงการในทำเลใกล้เคียง
Compare with nearby projectsWyne Sukhumvit
Project Name
Property Type
Developed by
Starting price
Land area
Completion Year
Sub District
District
Province
Facilities
Comments